ID CP2850278

Casa 5 cam Dumbravita Parcul Terra 140mp utili

ID CP2850278

235,000 €

Casă / Vilă cu 5 camere de vânzare
Dumbravita
140 mp
2010

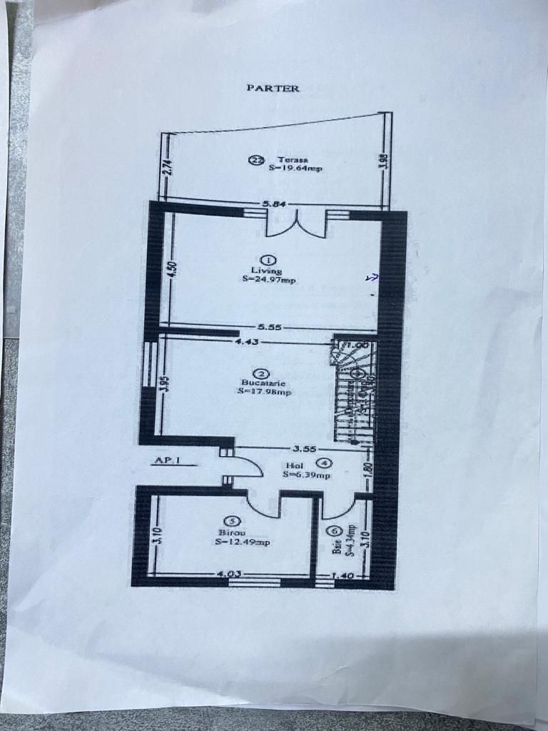
Casa de vanzare in] Dumbravita, aproape de Parcul Terra, face parte dintr-un triplex cu un design mai aparte compusa din birou, un living foarte mare, bucatarie si baie la parter , iar la etaj sunt 3 dormitoare 2 bai si balcon. Incalzirea se realizeaza cu ajutorul centralei proprii. De asemnea beneficiaza si de 4 aparate de aer conditionat. Suprafata utila este de 140 mp si un teren 342 mp in proprietate. Incalzirea este in pardoseală la parter iar la etaj cu calorifere. Casa este racordata la toate utilitatile curent gaz apa si canal benficiind inclusiv de sistem de supraveghere video cu alarma. Se vinde mobilata si utilata sau dupa preferintele clientului.

Pret 235000 euro neg

Pentru programarea unei vizite va rugam sunati la:

Tel 0736871505

Citește mai mult

  • Număr camere
    5
  • Dormitoare
    4
  • Număr bucătării
    1
  • Număr băi
    3
  • Număr balcoane
    1
  • Număr terase
    1
  • Disponibilitate
    Imediat
  • Tip casă
    Duplex
  • Suprafață utilă
    140 mp
  • Suprafață construită
    180 mp
  • Suprafață construită la sol (Amprentă)
    80.0 mp
  • Suprafață teren
    342 mp
  • Deschidere
    12 m
  • An construcție
    2010
  • Tip construcție
    Cărămidă

Facilități

Adriana Petrea

0736871505


Solicită chiar acum o vizionare
Nume
Telefon
Email
Sună acum Solicită vizionare
Necesare:

Site-ul nu poate funcționa corect fără aceste cookie-uri. Vezi cookie-urile

Statistică:

Strângem statistici anonime despre voi, vizitatorii unici, pentru a vă îmbunătăți experiența dumneavoastră. Vezi cookie-urile

Marketing:

Pentru a ne promova mai eficient serviciile noastre, folosim cookies pentru a vă identifica și a vă oferi proprietăți și servicii personalizate. Vezi cookie-urile

Acest site folosește cookies, află detalii. Alege ce tipuri de cookies dorești să permitem: